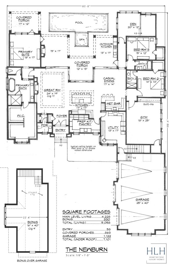
The Newburn

Icon Beds
3 Beds
Icon Baths
3 Baths | 1 Half Baths
Icon Garage
3 Car Garage
Icon SqFt
5,058 SqFt

Contact Us Today

Welcome Home

Blending clean, modern farmhouse elements with exceptional function, The Newburn offers 5,058 square feet designed around the way you want to live. From its stone-accented entry and sleek elevation to its wide-open living spaces and backyard-centered design, this home is as inviting as it is impressive.

At the heart of the home is a spacious great room with 11-foot ceilings and sightlines that extend through a chef’s kitchen, casual dining area, and out to the pool and spa. Multiple covered porches—including one with an outdoor kitchen—create a seamless connection between indoor comfort and outdoor relaxation.

The primary suite is tucked away for privacy and opens to its own porch overlooking the pool. Two secondary bedrooms with en-suite baths are located on the opposite wing, while a large gym, dedicated den, and full wet bar round out the main level’s luxury touches.

Above the garage, a bonus space offers endless potential for recreation, work, or future expansion. With a three-car garage, prep kitchen, oversized utility room, and ample storage throughout, The Newburn is thoughtfully designed for elevated everyday living.

Floor Plans

Request Information

Leave us a message and we’ll have one of our home specialists reach out to you!

    Get in Touch:   Call   Text   Email